

HOME > Á¦Ç°¼Ò°³ > ¼öÁ߹ͼ(±³¹Ý±â)
![]()

![]()

![]()


![]()

| Çü½Ä | Á¤°ÝÃâ·Â kW |
û¼öÃâ·Â kW |
±Ø¼ö P |
°¨¼Óºñ gear |
ȸÀü¼ö rpm |
ÃÖ´ëó¸®Ã¼Àû §©/hr |
À¯·® §©/min |
Áß·® kg |
|---|---|---|---|---|---|---|---|---|
| SMX-4-8 | 0.75 | 0.7 | 4 | 1750 | 130 | 2.2 | 60 | |
| SMX-4-15 | 1.5 | 1.3 | 170 | 2.8 | 65 | |||
| SMX-4-22 | 2.2 | 1.9 | 250 | 4.0 | 80 | |||
| SMX-4-37 | 3.7 | 3.4 | 300 | 4.8 | 80 | |||
| SMX-4-55 | 5.5 | 50. | 500 | 8.3 | 90 | |||
| SMX-4-75 | 7.5 | 7.0 | 700 | 11.5 | 95 | |||
| SMX-4-110 | 11 | 9.5 | 1000 | 18.4 | 110 | |||
| SMX-4-150 | 15 | 13.0 | 1500 | 25.1 | 120 | |||
| SMX-6-8 | 0.75 |
0.7 | 6 | 1180 | 150 | 3.0 | 65 | |
| SMX-6-15 | 1.5 | 1.3 | 230 | 4.8 | 80 | |||
| SMX-6-22 | 2.2 | 1.9 | 300 | 5.3 | 80 | |||
| SMX-6-37 | 3.7 | 3.1 | 450 | 7.5 | 90 | |||
| SMX-6-55 | 5.5 | 4.9 | 750 | 12.5 | 110 | |||
| SMX-6-75 | 7.5 | 6.5 | 830 | 13.8 | 120 | |||
| SMX-6-110 | 11 | 10.0 | 1500 | 25.3 | 140 | |||
| SMX-8-15 | 1.5 | 1.3 | 8 | 870 | 270 | 4.6 | 90 | |
| SMX-8-22 | 2.2 | 1.9 | 370 | 6.2 | 120 | |||
| SMX-8-37 | 3.7 | 3.1 | 900 | 15.0 | 150 | |||
| SMX-8-55 | 5.5 | 4.2 | 1000 | 17.0 | 155 | |||
| SMX-8-75 | 7.5 | 6.8 | 1200 | 22.0 | 160 | |||
| SMX-8-110 | 11 | 9.7 | 1400 | 24.0 | 180 | |||
| SMX-8-150 | 15 | 13.0 | 2000 | 34.0 | 200 | |||
| SMX-12-55 | 5.5 | 4.2 | 12 | 570 | 1100 | 19.0 | 160 | |
| SMX-12-75 | 7.5 | 6.2 | 1350 | 23.0 | 200 | |||
| SMX-12-110 | 11 | 9.5 | 2000 | 34.0 | 240 | |||
| SMX-4G-220 | 22 | 18.0 | 4 | 1:6 | 6600 | 110.0 | 280 | |
![]()


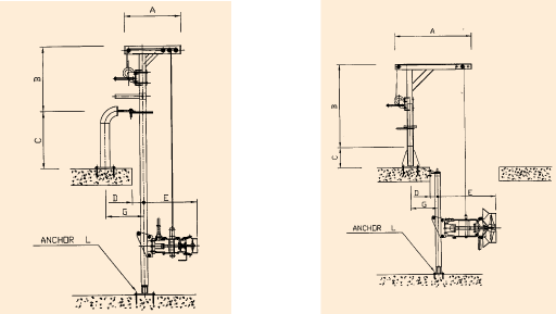
| Çü½Ä | A | B | C | D | E | F | G | L |
|---|---|---|---|---|---|---|---|---|
| SMX-4-8 | 700 | 800 | 715 | 150 | 520 | 150 | 470 | M12 x 120L |
| SMX-4-15 | 520 | |||||||
| SMX-4-22 | 660 | |||||||
| SMX-4-37 | 660 | |||||||
| SMX-4-55 | 942 | |||||||
| SMX-4-75 | 942 | |||||||
| SMX-6-110 | 1075 | M16 x 200L | ||||||
| SMX-6-150 | 1216 | |||||||
![]()

| ǰ¹ø | ǰ¸í | ÀçÁú | ǰ¹ø | ǰ¸í | ÀçÁú |
|---|---|---|---|---|---|
| 1 | POWER CABLE | 3CT | 52 | UPPER BEARING | STB2 |
| 2 | WEAR RING | STS304 | 54 | MOTOR SHAFT | STS410 |
| 3 | BRACKET | GC200 | 55 | ROTOR | S-60 |
| 4 | OIL SEAL | N.B.R | 56 | STATOR | S-60 |
| 5 | OIL CASING | GC200 | 59 | LOWER BEARING | STB2 |
| 6 | STUFFING BOX | GC200 | 60 | BEARING HOUSING | GC200 |
| 10 | PROPELLER | SSC13 | 61 | BEARING COVER | GC200 |
| 25 | MECHNICAL SEAL | SIC/SIC | 64 | FRAME | GC200 |
| 26 | SLEEVE | STS410 | 92 | GUIDE RAIL | STS304 |
